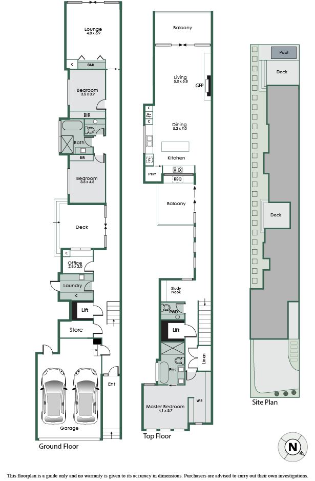
Floor/Site Plans and overlays
Floor plans are an important part of all real estate marketing and here at MDI we offer both black and white or colour plans as well as 3D. All plans can be customised to your requirements with room sizes, site plans, land maps etc. Image overlays with land dimensions in any style you require.







